Floor Plan
TOTO ISH Frankfurt 2011
Location: Frankfurt
Task: Design, Design Development and Construction Document
Collaboration: Winkreative, London - Sedeno Architekten, Berlin - GMOD-Design, Bedburg-Hau - Walbert-Schmitz, Aachen
Press:Frame Grand Stand 4 - World Interior Design 2012
Awards: red dot award yearbook 2011 - if award yearbook 2011
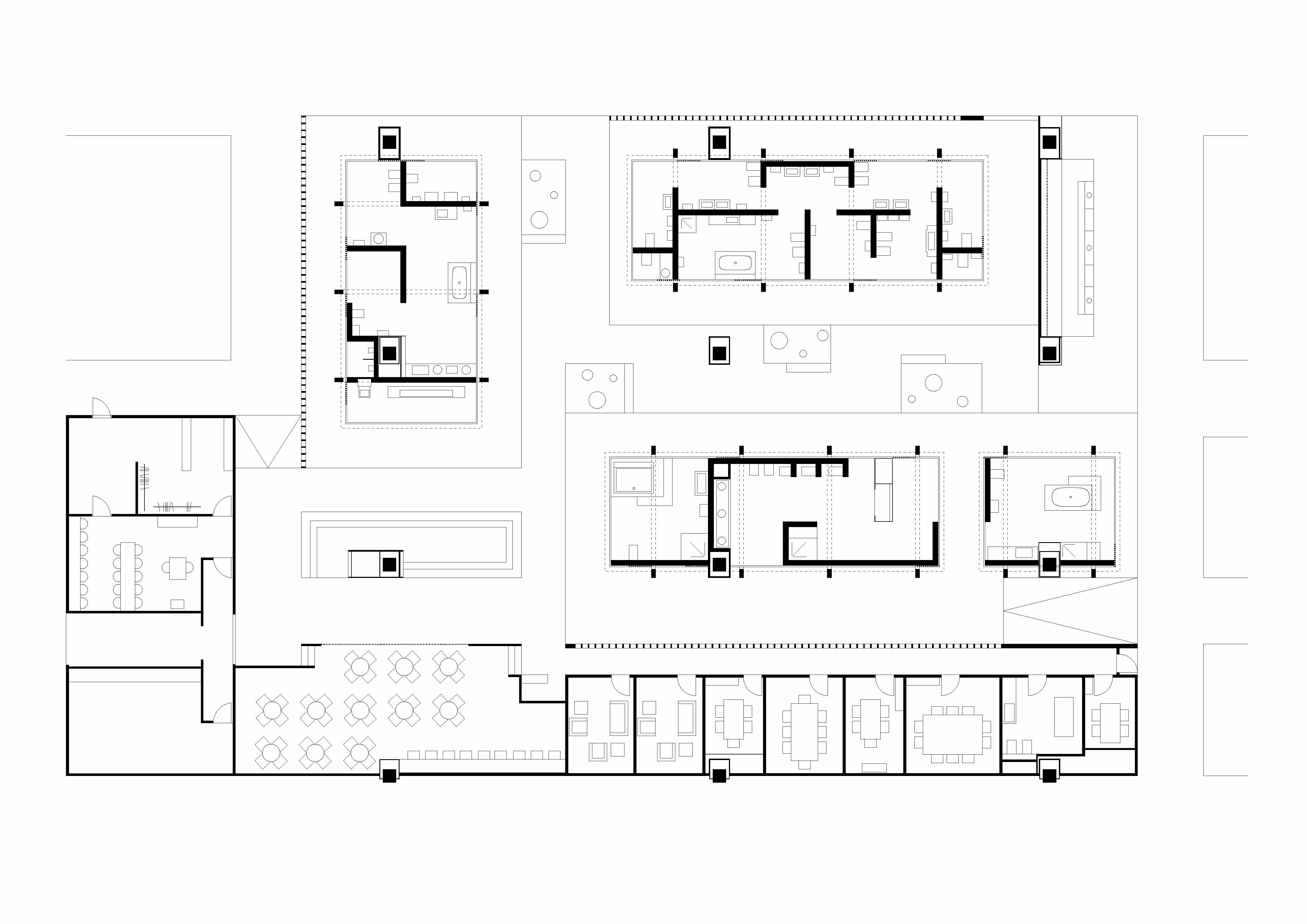
In 2011, MACH was once again able to design the Francfurt ISH trade fair stand for TOTO. This time, the focus was on the brand's environmentally friendly philosophy. MACH was inspired by the tradition of Japanese gardens and Japanese bathing culture.
The concept was a garden with three open pavilions, allowing visitors to stroll through the exhibition space in a relaxed manner. The combination of natural materials, modern architectural structures and high-tech products conveyed the essence of the TOTO brand and company values. MACH’s booth concept won a Red Dot Award and an IF Award for communication design.
