Novartis Office Basel
Location: Basel
Task: Design and Design Development
Collaboration: Addministra GmbH, Pratteln
The Novartis pharmaceutical group is considered a pioneer in the industry. Research and the development of pharmaceutical products require long-term work processes in changing team formations. This is one of the reasons why Novartis takes the topic of working environments particularly seriously. In close cooperation with this ambitious client, MACH developed new office space for the company headquarters on the Novartis campus, meeting the requirements of changing work models. While "activity-based working" is standard in many companies today, the challenge at the time was to originate such a concept. MACH's goal was to create a pleasant, healthy and inspiring working atmosphere.
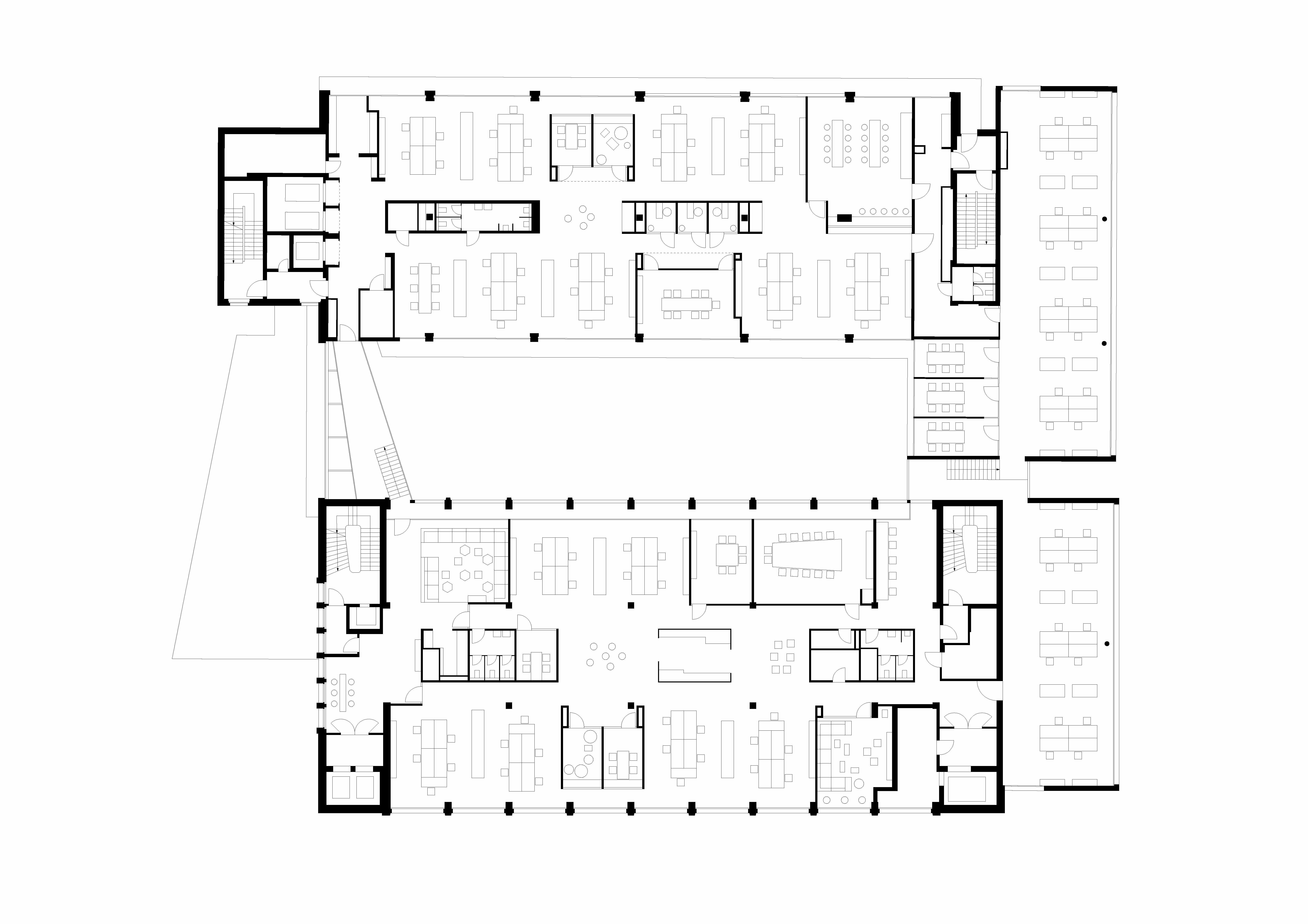
MACH structured the existing 1,300-square-meter open-plan office into several zones. Similar to a city, different quarters were designed to reflect the diversity of the workday. A coffee bar and a tea bar serve as orientation objects. The different areas are used for work processes - from independent to team-oriented work - as well as for moments of relaxation in between.
To foster the entrepreneurial spirit that Novartis encourages in its staff, MACH designed various tools, such as whiteboard walls, to capture ideas. The diverse space and furniture typologies also support the dynamic work of this global company.


Floor Plan