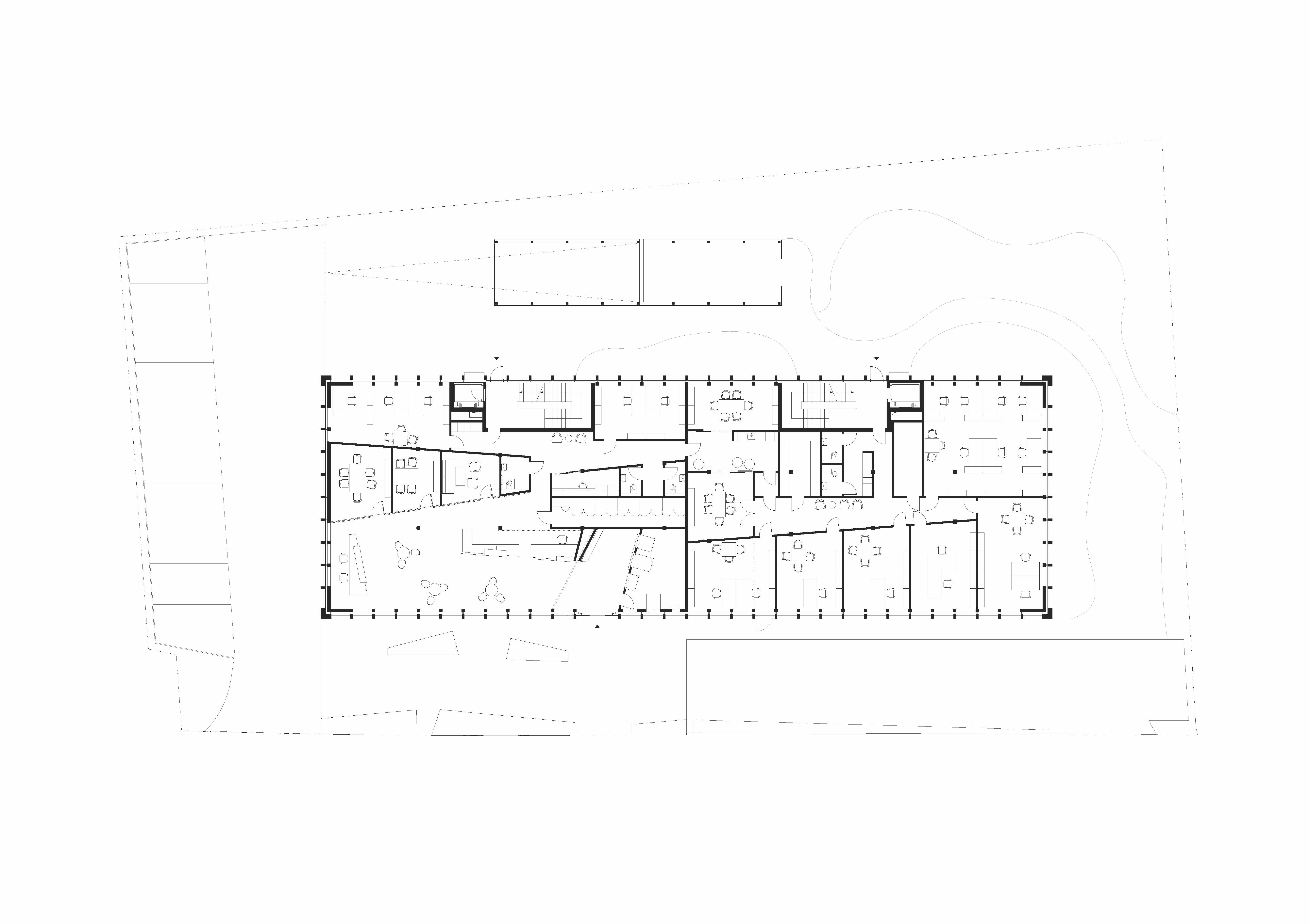
Floor Plan
Raiffeisen Branch Mellingen
Location: Mellingen
Task: Competition with selective application procedure
Raiffeisenbank's competition task was to develop the concept of an open advisory bank for the new headquarters in Mellingen.
The old town of Mellingen and the rivers Aare and Reuss were central motifs of the project 'Fluidum'. The defining characteristics of the old town were incorporated into the spatial structure of the floor plan. Looking at the floor plan, one can recognize the winding passages of the old town in an abstracted form.
Customer proximity is one of the most important reasons for the success of Raiffeisenbank. The personal relationships and competent advice are at the center. The reception area was designed to serve as a meeting zone, just like the village center of Mellingen. Thanks to a generous window façade with a very open design facing the main street, an inviting and direct relationship to the outside was created.
The elements of wood, stone, earth and water found in nature were reflected in the choice of materials: the employees' worktables and the reception desk with its naturally layered stone, for example, subtly refer to the nearby river with its sediment deposits. The slat walls made of wood, which ensure the privacy of the clientele, trace the course of the Reuss through Mellingen.
